A room of 12 m2
 8,784 DKK
                8,784 DKK
                
             Unlimited
                Unlimited
             Room
                Room
                
             København V
                København V
             12 m²
                12 m²
             1 rooms
                1 rooms
            .
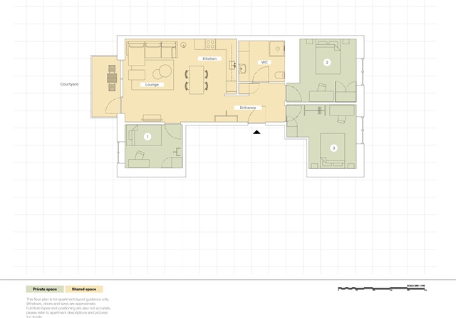
'Freya' is located on the 1st floor in a modern building on the beautiful Teglholmen island in the area of Sydhavn. The apartment consists of 3 single bedrooms, a spacious shared bathroom and a living room with a modern open kitchen and attached terrace.- Balcony/terrasse
- Furnished
- Floor plan
- Rent paid in advance: Contact owner
- Deposit: Contact owner
- Payment on account: Contact owner
- Vacant: 1. December 2025
- Placed:
- Might be allowed - ask landlord
- Case number: 1869654
 
                            
                         
                            
                        