Charmerende nyt rækkehus, centralt i Bjæverskov






No English text was provided by the landlord, but we have made this automated translation for you:
Lidemarksvej.
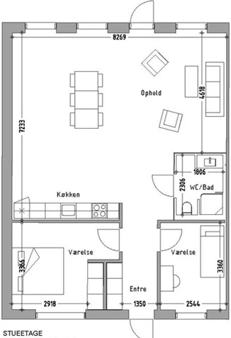
Ready to move in now!This newly built and charming townhouse on one level offers 2 good bedrooms, a lovely open kitchen/dining room and a nice bathroom. The home also has its own terrace and has fiber internet.
The spacious and bright kitchen is fully equipped with a dishwasher, oven, ceramic hob and fridge-freezer.
The large windows in the living room provide good light, and from the living room there is direct access to the private terrace via the large double doors.
The townhouse is ideally located between Ringsted and Køge, making it perfect for a family who wants to settle in a smaller urban community with easy access to schools, city life and public transport. In the immediate area you will also find scenic surroundings with the nearby forest within a short distance.
The home is rented out without a time limit and there is the possibility of a small pet, for which special permission must be sought.
In addition to the rent, the tenant pays for the tenant's electricity consumption.
The rentals are heated with underfloor heating and air to water heat pumps
Prepayment heating 700kr Prepayment water 450kr.
Pictures and illustrations are indicative
If you want to read the description in its original language that is also possible. Read original description
- Balcony/terrasse
- Rent paid in advance: 13,889
- Deposit: 41,667
- Payment on account: 1,150
- Vacant: Immediately
- Placed:
- Contact landlord
- Case number: 1867158