Værelse udlejes i lejlighed på Nørrebro.

Rent 6,500 DKK
Rental Period 1 year and more
Type Room
Location København N
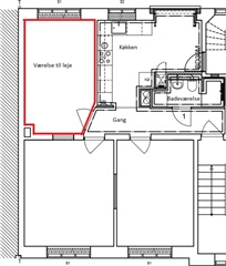
Area 12
Rooms 1 rooms

Falkoner Alle.

Please note that the address cannot be modified - the correct address is Ågade 96, 2200 København N.

This room is situated in a highly central location within an apartment on Nørrebro, right on the border of Frederiksberg. The room itself measures 12 square meters and offers access to a shared kitchen equipped with a dishwasher, as well as a bathroom containing both a washing machine and a tumble dryer.

Residents also have the option to use the courtyard area, which is available for grilling during the summer months.

The apartment benefits from close proximity to public transportation, with bus lines 250S, 8A, 12, and 66 reachable within a five-minute walk. Additionally, the metro can be accessed from Nuuks Plads.

Shopping convenience is another advantage, as most daily grocery stores-including Kvickly, Netto, Meny, and Irma-are located within a 5 to 10-minute walking distance.

Cleaning of communal spaces such as the kitchen, toilet, hallway, and bathroom is carried out by a cleaning service every two weeks and is included in the rent. Smoking and parties are not allowed.

  • Rent paid in advance: 0
  • Deposit: 10,000
  • Payment on account: Contact owner
  • Vacant: 1. February 2026
  • Placed:
  • Pets not allowed
  • Case number: 1505368

Users who have seen this property also saw these: