Kabbelejevej, 79 m2, 3 rooms, 10,500 kr.

Rent 10,500 DKK
Rental Period 1 year and more
Type Apartment
Location Brønshøj
Area 79
Rooms 3 rooms

Kabbelejevej, , floor: 1. tv..

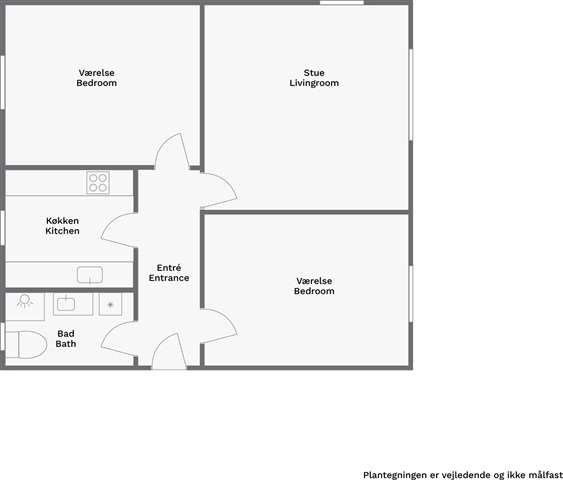
This spacious and well-proportioned three-room apartment offers generously sized bedrooms and a living room. The property is meticulously maintained and includes access to a large communal garden for residents. Additionally, the unit comes with a garage, and there are ample parking options available on the premises. The apartment will be available for rent starting June 1, 2026, with a lease term ranging from two to four years.

Inside, the apartment features a practical entrance hall with sufficient space for outerwear, a pleasant bathroom equipped with a shower and laundry facilities, a nicely appointed kitchen, two sizable bedrooms, and an attractive living room that benefits from large window sections allowing plenty of natural light.

Situated in a central location in Brønshøj, the apartment lies on a side street leading directly to Utterslev Mose, known as one of the most charming and popular recreational areas within Copenhagen Municipality. Public transport includes buses 350S, 5C, and 2A departing from Brønshøj Torv, while the city center can be reached by bicycle within approximately 15 minutes.

  • Rent paid in advance: Contact owner
  • Deposit: 31,500
  • Payment on account: 1,000
  • Vacant: 1. June 2026
  • Placed:
  • Pets allowed Efter aftale
  • Case number: 1893212