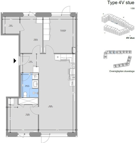
4 værelses lejlighed på 92 m2

Rent 13,400 DKK
Rental Period Unlimited
Type Apartment
Location Brøndby
Area 92
Rooms 4 rooms

Elementfabrikken, , floor: st.tv..

Situated in Brøndby, this spacious apartment covers 92 square meters and includes four separate rooms. Rent is set at 13,400 DKK per month, with an initial deposit of 40,200 DKK and one month’s rent paid upfront. The layout offers a balanced mix of private quarters and communal spaces, ideal for a comfortable living arrangement.

The neighborhood blends residential and commercial developments, providing convenient access to various amenities and institutions. Those pursuing education will find several options within roughly five kilometers: SOSU H Brøndby offers social and healthcare programs, the Police Academy trains future law enforcement officers, and NEXT – Vestskoven Gymnasium features both HTX and HHX courses. Additionally, NEXT Uddannelse København in nearby Rødovre is also easily reachable.

Transport links are well established, with bus routes connecting Brøndby to the greater Copenhagen metro area, including direct services to Glostrup and Rødovre—larger urban centers nearby. The area is also cyclist-friendly, featuring bike lanes and proximity to main roads, which makes commuting by bike practical and efficient.

For everyday needs, residents have access to a variety of shops throughout Brøndby and its neighboring districts. Supermarkets, specialty stores, and other services ensure daily essentials are readily available, making this an ideal location that combines education, transport, and shopping within easy reach.

  • Rent paid in advance: 13,400
  • Deposit: 40,200
  • Payment on account: Contact owner
  • Vacant: 15. May 2026
  • Placed:
  • Might be allowed - ask landlord
  • Case number: 1892934