3 rooms for 12,500 kr. per month

Rent 12,500 DKK
Rental Period Unlimited
Type Apartment
Location Taastrup
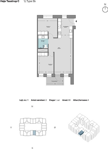
Area 86
Rooms 3 rooms

Bornholms Alle, , floor: 1. 6..

In the heart of Høje Taastrup, along Bornholms Alle, an array of apartments is available, ideally suited for housemates, couples, singles, and small families alike. These residences blend convenience and comfort in an attractive urban setting.

Each unit is a three-room apartment, presented fully ready for immediate occupancy, featuring bright and welcoming interiors. The apartments are located on a single floor and offer outdoor spaces in the form of either balconies or terraces. Storage needs are met with basement rooms ranging from 2 to 4 square meters. Essential kitchen and laundry appliances are included, such as a combined fridge and freezer, built-in oven, stove, exhaust hood, dishwasher, washing machine, and tumble dryer.

The property houses a total of 101 apartments, with no tenant association in place. Residents are permitted to have up to two pets without any size limitations. Accessibility is enhanced by the presence of an elevator within the building. Heating is provided via district heating, with underfloor heating ensuring a comfortable indoor climate. Internet services are supplied by TDC Fibernet. Parking is available through 52 licenses for a parking garage situated adjacent to the building. For cyclists, there are bike racks located in the basement. Shared amenities include an orangery on the rooftop terrace and a playground area in the courtyard.

Bornholms Alle is a side street branching off from Hveen Boulevard, highlighting the convenient transport links in this neighborhood. Access to major motorways is straightforward, with the Holbæk Motorway to the north and both the Motorring 4 and Køge Bugt Motorway to the south reachable with ease. Walking distance to Høje Taastrup Station facilitates frequent departures via S-train and regional trains toward Copenhagen Central Station. In close proximity, there are numerous childcare options, schools, and shopping facilities, which collectively contribute to smooth daily living.

For leisure, residents can enjoy a short walk to City2, a large shopping center offering a wide variety of stores, dining options, and cafés. Adjacent to this center is a popular skatepark. Those interested in cycling can explore Taastrup Main Street, known for its charming atmosphere and wide selection of retail and specialty shops. Close to this area are Taastrup Station and the recreational green spaces surrounding Selsmosen, which provide attractions throughout the year.

Additional notes include that all images, floor plans, and descriptions serve as guidance and may differ from actual conditions. Furthermore, as a standard policy, tenancy is generally not granted to individuals registered in the RKI credit database, and checks are conducted prior to the signing of rental agreements.

  • Rent paid in advance: Contact owner
  • Deposit: Contact owner
  • Payment on account: Contact owner
  • Vacant: 1. June 2026
  • Placed:
  • Pets allowed
  • Case number: 1892931