2 room apartment on 68 m2

Rent 4,295 DKK
Rental Period Unlimited
Type Apartment
Location Viborg
Area 68
Rooms 2 rooms

St. Sct. Hans Gade, , floor: 1. tv..

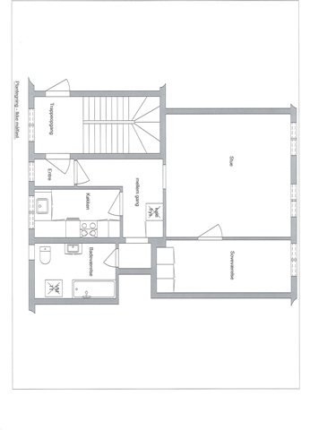
This inviting residence features a spacious living room illuminated by large windows that allow ample natural light, alongside a separate bedroom equipped with built-in closets. The kitchen is designed for practicality, offering generous storage options, while the bathroom presents a simple yet functional layout that includes both a bathtub and washing facilities.

Traditional plank flooring runs throughout the apartment, complementing a floor plan that clearly separates the living areas from the sleeping quarters. Situated in a central urban location, the property enjoys close proximity to shopping, public transportation, and the vibrancy of the city.

Ideal for someone seeking a conveniently positioned home with a charming and efficient interior layout. Please note that the photos and floor plan are provided for guidance only.

All rentals are allocated on a first-come, first-served basis.

  • Share-friendly
  • Rent paid in advance: Contact owner
  • Deposit: 12,885
  • Payment on account: 850
  • Vacant: 15. July 2026
  • Placed:
  • Pets not allowed
  • Case number: 1892524