116 m2 apartment in Odense C

Rent 11,317 DKK
Rental Period Unlimited
Type Apartment
Location Odense C
Area 116
Rooms 4 rooms

Falen, , floor: 1..

This charming four-room apartment spans two levels and benefits from abundant natural light throughout. It boasts an exceptional location within walking distance of all the city center's amenities, including shops and cafés along the pedestrian street. Nearby, you will find Munke Mose park with Odense River, walking paths, and green spaces, as well as convenient access to shopping options and the Odense Light Rail. Such a well-situated residence is truly rare to find in Odense.

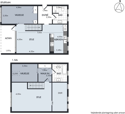
The apartment's layout features an entrance hall with wardrobe space and access to a bathroom, a spacious and well-equipped kitchen with ample cabinet storage that opens directly into the dining area. From the dining room, you can step out onto a lovely sun-drenched balcony. There is also a large bedroom with built-in closets on the main level. A staircase from the dining room leads to the upper floor, where the living room is located along with a second bathroom and another bedroom.

Throughout the apartment, wooden floors create a warm atmosphere, and a generously sized storage room is included.

  • Share-friendly
  • Balcony/terrasse
  • Parking
  • Rent paid in advance: 11,317
  • Deposit: 33,951
  • Payment on account: Contact owner
  • Vacant: 1. July 2026
  • Placed:
  • Pets not allowed
  • Case number: 1892403