The date for open house is only visible with subscription - click here

Charmerende lejlighed 2. etage, sydøst-vending (morgensol) - tæt på KBH H 20 min

Rent 12,500 DKK
Rental Period Unlimited
Type Apartment
Location Hedehusene
Area 76
Rooms 2 rooms

No English text was provided by the landlord, but we have made this automated translation for you:

  • Digital showcase is available. Landlord offers to show this property to you using video conference tools.

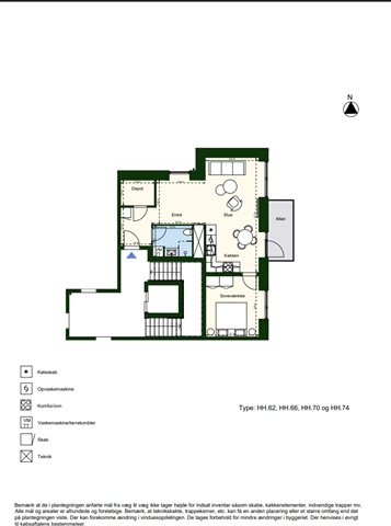
Cikoriegade, , floor: 2. 4..

Beautiful, newly built two-bedroom apartment from the summer of 2026 in the beautiful property Cikoriehaven.

The apartment offers a large, private balcony with a view of the common green area. Shared party hall for private events.

Cikoriehaven is part of the new district NærHeden in Hedehusene - an area with a focus on modern city life, community and closeness to nature. Here you live close to Hedeland Nature Park, lakes and recreational areas, while Copenhagen H. can be reached in just 20 minutes by train and Roskilde in 10 minutes.

In NærHeden, approximately 3000 new homes, schools, institutions and good shopping opportunities are being built. There is also a community center with activities for both children and adults. On the ground floor of this property is a beautiful SuperBrugsen, which makes everyday life extra convenient.

The apartment contains:
New, beautiful kitchen with all white goods in open connection with the living room

Direct access from the living room to its own balcony

Bedroom with built-in wardrobes

Beautiful bathroom with shower and space for a sink

Storage room in the apartment

NærHeden is created for an active and safe everyday life. Via the Loopet – the green park that connects NærHeden with Hedehusene – you can easily get around to the district's most important hubs. The Loopet is reserved for pedestrians and cyclists and offers green urban spaces and activity zones.

NærHeden combines the best of the capital with the best of suburban life: dense buildings, cozy urban spaces, small private areas and good common facilities.

!Real picture appears at the time of takeover.
!Partially furnished. (Dining table, sofa, bed frame, carpets)

If you want to read the description in its original language that is also possible. Read original description

Energy declaration:
  • Balcony/terrasse
  • Parking
  • Lift
  • Garden
  • Furnished
  • Rent paid in advance: 37,500
  • Deposit: 37,500
  • Payment on account: 1,000
  • Vacant: 15. June 2026
  • Placed:
  • Pets not allowed
  • Case number: 1892026