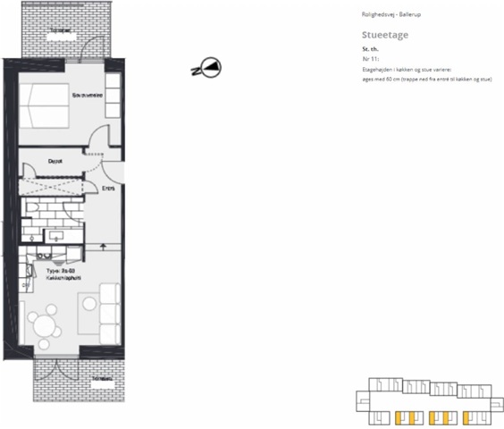
70 m2 apartment on Rolighedsvej

Rent 11,500 DKK
Rental Period Unlimited
Type Apartment
Location Ballerup
Area 70
Rooms 2 rooms

Rolighedsvej.

This bright and spacious two-room apartment features a generously sized bedroom equipped with built-in wardrobes, a modern bathroom that includes a combined washer and dryer, and an open-plan kitchen and dining area that leads directly out to a lovely terrace.

The building itself presents a cohesive and contemporary architectural style characterized by light and well-balanced facade elements. Special attention has been given to the roof area, where residents have the option to secure their own private rooftop retreat. Each apartment type is carefully designed to maximize natural light through large windows, allowing for abundant sunlight and pleasant views of the surroundings.

Within the development, there are 134 rental units ranging in size from 65 to 114 square meters, comprising two-, three-, and four-room layouts. Regardless of the floor you reside on, you will have access to either a balcony or a private terrace, providing a tranquil space to enjoy outdoor living.

An elevator service extends to the rooftop level, where tenants can rent individual rooftop spaces-ideal for gardening, creating a green haven, or pursuing self-sufficiency. The rooftop offers a spacious environment with ample sky above to bring your ideas to life. Additionally, a communal area will be established on the roof, providing a cozy setting for residents to connect and socialize.

Located conveniently close to the train station, this neighborhood offers everything needed for everyday living: a variety of shopping options including supermarkets and retail stores, as well as beautiful natural surroundings. It creates the perfect foundation for a comfortable, convenient, and fulfilling daily life.

  • Rent paid in advance: 11,500
  • Deposit: 34,500
  • Payment on account: 1,007
  • Vacant: 1. August 2026
  • Placed:
  • Pets allowed
  • Case number: 1890303