3-værelses lejlighed i Travbyen

Rent 7,300 DKK
Rental Period Unlimited
Type Apartment
Location Billund
Area 78
Rooms 3 rooms

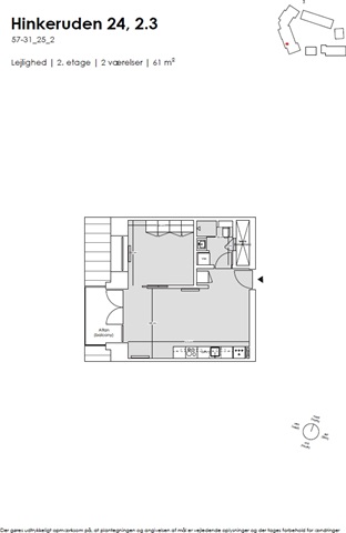
Hinkeruden, , floor: 2, 4..

Within these residences, you encounter bright, thoughtfully designed spaces that prioritize both aesthetic appeal and practical use. Expansive windows allow natural light to permeate deeply into each room, fostering a calm and welcoming ambiance.

The floors are crafted from durable oak lamella parquet, providing warmth while withstanding daily wear and tear. Kitchens feature timeless materials and incorporate modern components alongside sturdy stainless steel countertops, combining longevity with a sleek, Nordic style.

Bathrooms are arranged with practical solutions, showcasing elegant tiles and classic fixtures that create a coherent design throughout the home. High-quality windows and doors contribute to excellent insulation, ensuring a comfortable indoor climate and minimizing energy consumption all year long.

The selection of materials both inside and out reflects careful consideration, sustainability, and durability, all aimed at establishing a residence that feels contemporary, functional, and inviting from the moment you step inside.

*The visual representations are for guidance and inspirational purposes only. Variations may occur between the illustrations and the completed building, including differences in materials, colors, furnishings, and details.

  • Youth housing
  • Senior housing
  • Balcony/terrasse
  • Parking
  • Lift
  • Rent paid in advance: 0
  • Deposit: 21,900
  • Payment on account: 1,000
  • Vacant: 1. November 2026
  • Placed:
  • Pets allowed
  • Case number: 1889928