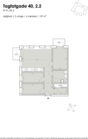
4-værelses lejlighed i Travbyen

Rent 10,000 DKK
Rental Period Unlimited
Type Apartment
Location Billund
Area 107
Rooms 4 rooms

Tagfatgade, , floor: 2, 2..

Inside the residences, you will find bright and carefully designed spaces that emphasize both aesthetic appeal and practicality. Expansive windows allow natural light to flood deep into the interiors, fostering a calm and welcoming environment.

The flooring consists of durable oak lamella parquet, combining warmth with the resilience needed for everyday living. Kitchens are crafted from timeless materials, featuring modern components alongside sturdy stainless steel countertops, which contribute to longevity while delivering a sleek, Nordic style.

Bathrooms are fitted with practical layouts, elegant tiles, and classic fixtures, establishing a consistent design throughout the home. High-quality windows and doors provide excellent insulation, ensuring a comfortable indoor climate and low energy consumption throughout the year.

The choice of materials inside and out reflects careful consideration, sustainability, and durability, all intended to create a dwelling that feels contemporary, functional, and inviting from the moment you move in.

*The visual representations are for guidance and inspiration only. Differences may exist between the images shown and the completed construction, including materials, colors, furnishings, and finer details.

  • Youth housing
  • Senior housing
  • Balcony/terrasse
  • Parking
  • Lift
  • Rent paid in advance: 0
  • Deposit: 30,000
  • Payment on account: 1,300
  • Vacant: 1. December 2026
  • Placed:
  • Pets allowed
  • Case number: 1889926