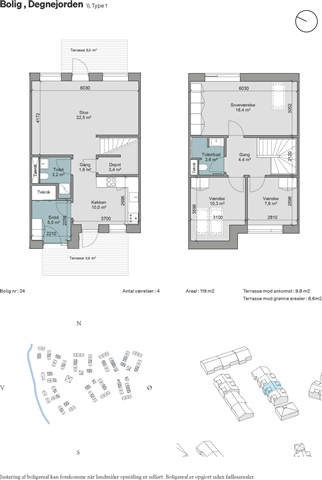
4 room house of 118 m2

Rent 14,900 DKK
Rental Period Unlimited
Type House
Location Lejre
Area 118
Rooms 4 rooms

Degnejorden.

This townhouse, located in LejreOmrådet, presents a blend of modern design, brightness, and tasteful finishes within a contemporary village community focused on social interaction. New construction is currently rising in Lejre, with the open spaces between the clusters of homes designed as natural areas featuring diverse planting-various trees and shrubs grow amidst a base of meadow grasses and herbs. Within this green setting, informal footpaths and small zones for lingering and activities have been integrated.

The development comprises 82 rental units spread across three distinct housing types, available in either one or two stories. In addition to these rental homes, 13 houses are being sold separately. The neighborhood will also include a community hall alongside five shared houses. To accommodate parking needs, a total of 143 unrestricted spots, including spaces designated for disabled drivers, will be provided. The site will be equipped with two electric vehicle charging stations capable of servicing four cars simultaneously.

Occupancy will occur in three phases, with exact move-in dates for each property detailed in the individual listings. Tenants are not required to pay any prepaid charges through the landlord since water is supplied by FORS and heating is provided via heat pumps; however, residents are responsible for registering with their own electricity supplier. All kitchen appliances are included as part of the rental.

Reservations can be secured by attending the regularly scheduled open house events, held approximately once weekly until all units have been leased. Interested parties may request an invitation to the next open house through the advertisement. The payment for moving in is due promptly after signing the lease agreement. Viewing opportunities are limited solely to the model home before tenancy begins, and access to the construction areas without an open house invitation is strictly prohibited.

Please note that the photographs, floor plans, and descriptions serve as general guidance. Applicants registered in RKI will regrettably be ineligible for tenancy, a status that will be verified during the lease contract process.

  • Share-friendly
  • Balcony/terrasse
  • Parking
  • Floor plan
  • Rent paid in advance: Contact owner
  • Deposit: Contact owner
  • Payment on account: Contact owner
  • Vacant: 15. April 2026
  • Placed:
  • Pets allowed
  • Case number: 1889383