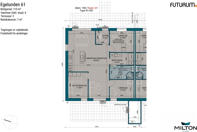
House on Egelunden in Haslev

Rent 13,695 DKK
Rental Period Unlimited
Type House
Location Haslev
Area 115
Rooms 4 rooms

Egelunden, , floor: 0..

This spacious and bright townhouse features a modern entrance leading directly into the contemporary kitchen, which opens up to a generously sized living room. From here, there is direct access to the private terrace located at the rear of the property. Adjacent to the open dining area, you will find a large master bedroom equipped with built-in wardrobes, alongside two additional bedrooms, a contemporary bathroom, and a utility room housing the home's technical installations, as well as space for both a washing machine and a dryer.

The property includes its own garden and terrace, complemented by a 7 m² storage shed for tools and outdoor equipment. Parking is available in shared areas nearby. All utility expenses are billed directly by the supply companies.

The townhouses and duplexes throughout the development are designed to maximize light and openness, featuring Troldtekt ceilings and walls finished with white, textured plaster. Large windows allow for ample natural daylight across every room. Oak plank laminate flooring covers the kitchen, dining area, living room, and bedrooms, while the entrance hall, utility, bathroom, and shower areas boast elegant dark gray tile floors. Doors are smooth-finished in white with stainless steel handles, and there's an absence of door thresholds to ensure easy accessibility. Window sills are masonry and whitewashed, with walls meeting the floors through sleek, white baseboards.

Attention to detail is evident throughout the home: the kitchen, bathroom, utility room, and master bedroom are fitted with modern HTH cabinetry in a smooth white finish, accented by anthracite handles. The countertops are practical laminate in a rustic slate tone, featuring spacious stainless steel sinks. Behind the stove, a splashback simplifies cleaning. The bathroom vanity includes a molded sink, and there is a wall-mounted toilet by Ifö Sign, high-quality fittings from German manufacturer Hans Grohe, and a linear drain in the shower niche.

Included are high-quality appliances: a built-in oven housed in a tall cabinet, an integrated fridge-freezer, and a dishwasher. The utility room contains both a washing machine and a dryer.

Lighting is thoughtfully installed with fixed light sources in the bathroom, utility room, and ventilation system in the attic, while the kitchen cabinets include spotlights underneath.

Electric vehicle owners benefit from several charging stations located within the shared parking areas of the complex.

To ensure a healthy indoor environment, the entire townhouse has underfloor heating controlled independently by room-specific thermostats. A ventilation system is installed to maintain good air quality throughout the home. Utility consumption for electricity (including heating) and water is measured individually and settled directly with the providers. Wastewater charges are paid monthly with the rent. Heating is supplied via an air-to-water heat pump.

Externally, there is a power outlet, an outdoor water tap, and a wall-mounted light near the entrance door.

All homes within phase 1B are designed as senior-friendly residences. They are prepared for potential installation of assistive devices, including reinforced ceilings capable of supporting lifting equipment, adapted walk-in showers without thresholds, level access throughout, and strengthened walls for mounting adjustable lift and sink systems in both the kitchen and bathroom, among other accessibility features.

  • Rent paid in advance: 11,659
  • Deposit: 34,977
  • Payment on account: Contact owner
  • Vacant: 1. June 2026
  • Placed:
  • Pets allowed
  • Case number: 1889116