11 m2 room with balcony

Rent 9,539 DKK
Rental Period Unlimited
Type Room
Location København K
Area 11
Rooms 1 rooms

.

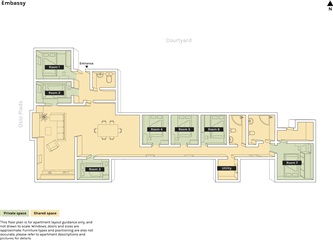
Built in 1901, this stately apartment building houses a top-floor unit offering stunning panoramic views of Copenhagen. The residence comprises seven rooms in total, including one double bedroom and six singles. There are three bathrooms available, two of which are equipped with showers, providing practicality and ease for multiple occupants. A standout feature of this home is the vast, open-plan space that seamlessly unites the kitchen, dining area, and living room. This layout fosters a highly social environment, allowing those cooking to easily engage with others relaxing in the living or chill-out areas. Adjacent to the kitchen, a modest balcony accommodates two people comfortably, perfect for savoring morning coffee while taking in the exceptional outlook.

  • Rent paid in advance: Contact owner
  • Deposit: Contact owner
  • Payment on account: Contact owner
  • Vacant: 1. May 2026
  • Placed:
  • Might be allowed - ask landlord
  • Case number: 1889091