Room with balcony

Rent 10,207 DKK
Rental Period Unlimited
Type Room
Location København V
Area 14
Rooms 1 rooms

.

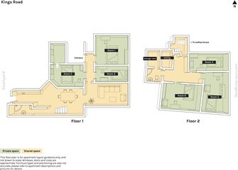
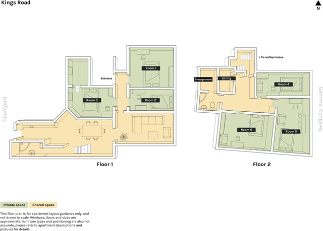
Spanning two levels, this exceptional and generous apartment features a substantial rooftop terrace offering panoramic 360-degree vistas of Copenhagen's rooftops alongside the scenic Skt. Jørgen lake. Situated on the boundary between Frederiksberg and Vesterbro, it lies conveniently close to the city centre. Adjacent to the well-known Det Ny Teater, the residence is only a five-minute stroll from both Vesterport and the Central Station. Multiple bus routes, including lines 9A, 6A, and 26, run along the street and via nearby Vesterbro's Torv. Within a brief two-minute walk, residents can access Copenhagen's planetarium along with a variety of popular dining establishments on Vesterbrogade, as well as cafés like Café Altanen and Pauseriet. For a leisurely stroll, one might grab a takeaway coffee and walk around the picturesque lakes, where sightings of Denmark's national bird, the swan, are common. The street Gammel Kongevej, named the King's Old Road and dating back to 1641, was initially reserved for royal use, but from the 18th century onward, that privilege passed to Frederiksberg Allé, opening Gammel Kongevej for public access.

Inside, the apartment offers six bedrooms, comprising two rooms designed for couples and four single-occupancy rooms. Nearly every bedroom boasts a distinctive view overlooking the lake. The property includes two bathrooms, one located on each floor. There is also a conveniently situated storage room on the second level, accessible directly from within the apartment. Rooftop spaces are rare and highly sought after in Copenhagen, making this terrace a perfect spot to unwind with a drink, soak in the surroundings, and appreciate the special amenities this home provides.

  • Rent paid in advance: Contact owner
  • Deposit: Contact owner
  • Payment on account: Contact owner
  • Vacant: 1. May 2026
  • Placed:
  • Might be allowed - ask landlord
  • Case number: 1888607