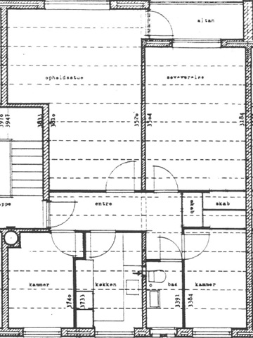
4 værelses lejlighed fordelt på 84 m2

Rent 5,800 DKK
Rental Period Unlimited
Type Apartment
Location Holstebro
Area 84
Rooms 4 rooms

No English text was provided by the landlord, but we have made this automated translation for you:

Rendsborggade, , floor: 1. tv..

Lovely large, share-friendly apartment with access to its own terrace and views of green areas. It is located in a quiet neighborhood, close to shopping and only five minutes from the center.

The apartment is newly renovated.
Residents have access to a large communal laundry, storage room, locked bicycle parking and a large parking lot. In addition, there is a permanent skilled service employee assigned to the building.

Tenants must bring their own refrigerator.

Pets are allowed.

If you want to read the description in its original language that is also possible. Read original description

  • Balcony/terrasse
  • Parking
  • Rent paid in advance: 5,800
  • Deposit: 17,400
  • Payment on account: 786
  • Vacant: Immediately
  • Placed:
  • Pets allowed
  • Case number: 1887570