2 room apartment on 65 m2

Rent 11,850 DKK
Rental Period Unlimited
Type Apartment
Location Nørresundby
Area 65
Rooms 2 rooms

Bjerggade, , floor: st. th..

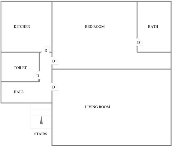
This 65-square-meter apartment is situated in Nørresundby, a tranquil neighborhood with convenient bus connections. The unit comprises an entrance hall, kitchen, living room with dining area, bedroom, separate toilet, and bathroom.

Furnished and equipped with a fully outfitted kitchen, the apartment is part of a well-maintained building containing four units in total. Residents have access to a private washing machine and dryer, along with free parking facilities nearby.

The rental is intended for tenants who maintain respectful and quiet behavior, as noisy conduct will not be tolerated. Smoking is strictly prohibited inside, and pets are not allowed.

Rent includes heating, water, electricity, internet, and TV services, among other utilities. Biweekly cleaning is mandatory and included in the rent. The apartment comes supplied with linens and towels.

Provided the apartment remains undamaged upon move-out, the full security deposit will be refunded. A cleaning fee of 2,000 DKK is charged.

Nørresundby is located on the northern bank of the Limfjord, directly opposite Aalborg, and was historically an independent market town. The district comprises several neighborhoods, including Midtbyen/Skansen, Lindholm with its Viking memorial Lindholm Høje, Nørre Uttrup, and Bouet. These areas feature a mix of older and newer housing developments alongside commercial zones.

Accessibility to Aalborg is facilitated by the Limfjord Bridge, the Cultural Bridge (Kulturbroen), and Lindholm Station. Recreational options abound, with green spaces, walking trails around Lindholm Høje, and the waterfront promenade at Nørresundby Brygge.

Rental reference number: 1260AFA

  • Parking
  • Rent paid in advance: 0
  • Deposit: 23,700
  • Payment on account: Contact owner
  • Vacant: Immediately
  • Placed:
  • Pets not allowed
  • Case number: 1887558