3 værelses lejlighed i Randers

Rent 5,009 DKK
Rental Period Unlimited
Type Apartment
Location Randers C
Area 80
Rooms 3 rooms

No English text was provided by the landlord, but we have made this automated translation for you:

Sjællandsgade, , floor: 2. tv..

If you would like to have a showing of this apartment, write a few words and yourself, and we will get back to you.
Deposit-free option: We have a partner who can help with financing.

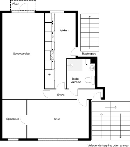
3-room apartment by Randers train station of 80 square meters with a balcony. Randers train station can be found just around the building and there is parking on the opposite side of the property.

This 3-room apartment welcomes you with a lovely long hallway and planed floors. The hallway branches out to 4 of the apartment's 5 rooms. First comes a spacious bathroom with a cabinet arrangement next to the sink, a round mirror and good lighting via ceiling lighting.

Older kitchen with lots of upper and lower cabinets, dishwasher, space for a small dining table, practical vinyl on the floor and with access to the back stairs.

Next to the kitchen is a large, spacious bedroom that has access to the balcony facing the backyard.

Large spacious living room with planed floors and double windows that give the room a good amount of light. The living room could easily accommodate a dining table and sofa arrangement. Further into the living room you come to an extra room. This can be used as a children's room, office or hobby room.

Unfortunately, we cannot allow pets in this apartment.

This 3-room apartment by Randers train station is suitable for students, commuters, couples, small families or singles with children.

The apartment is just a stone's throw from Randers train station and for commuters, the motorway is not far from this property, and there is parking on the opposite side.

The following facilities for all residents of the property:
The apartment has an extra attic for storage, if desired. For all apartments there are shared laundry facilities, drying and bicycle rooms in the basement.

The surrounding properties have a shared backyard. This applies to the addresses: Sjællandsgade and Vilh. Thomsens Plads /Vesterled. So if you want to have a cozy evening in the backyard, you can easily run into your neighbor, next door neighbor or upstairs neighbor.

If you want to read the description in its original language that is also possible. Read original description

Energy declaration:
  • Rent paid in advance: Contact owner
  • Deposit: 15,027
  • Payment on account: 700
  • Vacant: 1. July 2026
  • Placed:
  • Pets not allowed
  • Case number: 1887368