5 rooms for 27,500 kr. per month

Rent 27,500 DKK
Rental Period 1 year and more
Type House
Location Valby
Area 146
Rooms 5 rooms

Lindebugten.

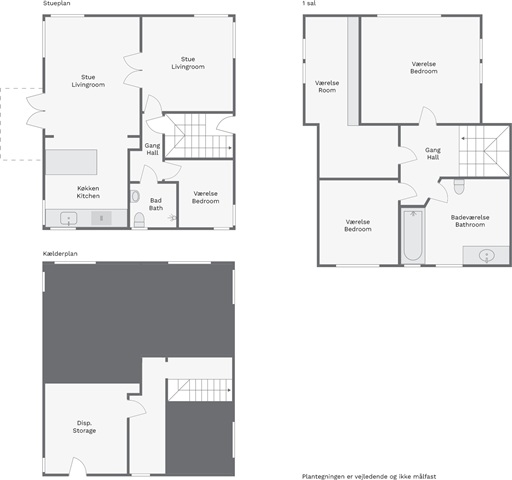
This furnished villa from 1934, thoughtfully updated to meet 2026 standards, offers 160 square meters spread over two floors. The residence retains many charming original features and is complemented by a well-established, private garden that provides ample space for outdoor activities as well as relaxing with a glass of rosé on the terrace. Please note that the property comes fully furnished.

Inside, the layout includes an entrance hall that provides access to both the first floor and the basement. On the ground level, there is a small room suitable as an office or bedroom, alongside a bathroom equipped with a shower. The expansive and elegant kitchen-living area features a bespoke carpenter's kitchen and opens directly onto the garden, connected to the living room through double doors. Upstairs, the master bedroom offers built-in wardrobes, accompanied by two additional spacious bedrooms and a large bathroom complete with a bathtub and laundry facilities. The basement houses a couple of versatile rooms available for various uses.

Situated in a peaceful residential neighborhood, this home combines tranquility with convenient access to urban amenities. The area is known for its green spaces, notably Vigerslevparken, with Frederiksberg and Damhussøen also close by. Transportation options are excellent, with both buses and the S-train accessible at Ålholm Station. Nearby, you will find schools, childcare centers, and grocery stores, including Hanssted Skole within a short distance.

  • Balcony/terrasse
  • Furnished
  • Rent paid in advance: Contact owner
  • Deposit: 82,500
  • Payment on account: 2,500
  • Vacant: 1. May 2026
  • Placed:
  • Pets allowed Efter aftale
  • Case number: 1887139