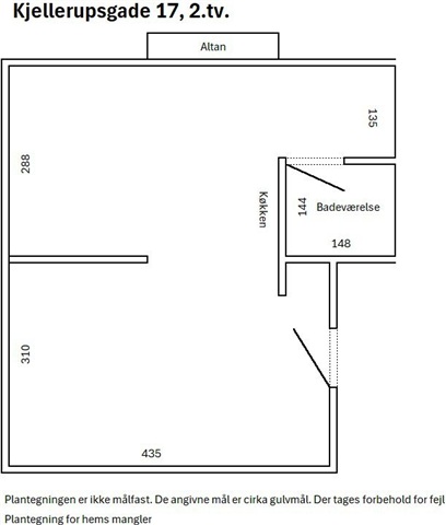
2 room apartment on 38 m2

Rent 4,995 DKK
Rental Period Unlimited
Type Apartment
Location Aalborg
Area 38
Rooms 2 rooms

Kjellerupsgade, , floor: 2. tv..

This compact apartment offers a well-organized living space of 37 m², complemented by an additional loft area of approximately 6 m², providing extra room within the residence. The layout is practical and suits, for example, a student or a single occupant seeking accommodation with a central location in Aalborg.

The building features a shared laundry room, and the apartment comes with a storage space conveniently situated next to the laundry facilities.

Among the apartment's benefits are the loft, which adds valuable space, efficient use of the available floor area, and a kitchen equipped with a refrigerator, stovetop, oven, and range hood. There is also a storage room for belongings and shared laundry amenities within the property. New windows are scheduled for installation in the summer of 2026.

Situated on Kjellerupsgade, the property enjoys a central position in Aalborg, with easy access to shopping, public transportation, and the city's various attractions. Residents benefit from proximity to Aalborg's downtown area, educational institutions, and green spaces, making this location particularly appealing for students and others who desire a home near all essential conveniences.

Energy declaration:
  • Rent paid in advance: 4,995
  • Deposit: 14,985
  • Payment on account: 825
  • Vacant: 1. June 2026
  • Placed:
  • Pets not allowed
  • Case number: 1887134