Shareable apartment seeks tenant

Rent 16,900 DKK
Rental Period Unlimited
Type Apartment
Location Valby
Area 93
Rooms 3 rooms

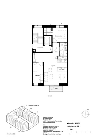
Vigerslev Allé, , floor: 2. tv..

Located in the heart of Valby, this newly constructed building houses a charming apartment designed with an efficient floor plan and high-quality materials. With its number of rooms, it is perfectly suited for either couples or a small family. The building features a striking facade composed of brickwork complemented by metal panels on the top floor, lending a contemporary and somewhat industrial edge to the structure. Outside, the large window sections and balconies break the facade's uniformity, adding architectural interest.

Upon entering the apartment, you step into an open hallway that flows into the rest of the living space, with a built-in closet offering ample room for outerwear. The bathroom contains a shower enclosure along with space sufficient for a washing column. The bedroom stands out through its generous size and exceptional natural light streaming in. The majority of the apartment's square footage unfolds within the living area, which benefits from a bright, modern design featuring an attractive floor and expansive windows. The kitchen is cleverly arranged along one wall, making the open living space a versatile environment with numerous options for furnishing. Additionally, the living room includes access to a practical storage room, a wide window offering generous views, and a terrace door leading onto the south-facing balcony, which overlooks the neighborhood.

This urban location places you less than 500 meters from a daycare center, school, and a MENY supermarket. The same walking distance takes you to Valby Station, while nearby you will find delightful cafes along Valby Langgade and excellent shopping opportunities at Spinderiet. Please note that the images, floor plan, and text serve as guidance and may differ from the actual condition of the apartment. Prospective tenants listed in RKI will unfortunately not be able to rent this apartment, a status verified at the lease contract stage.

  • Rent paid in advance: Contact owner
  • Deposit: Contact owner
  • Payment on account: Contact owner
  • Vacant: 1. June 2026
  • Placed:
  • Pets not allowed
  • Case number: 1887131