House on Viften in Greve

Rent 15,100 DKK
Rental Period Unlimited
Type House
Location Greve
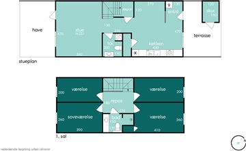
Area 106
Rooms 4 rooms

Viften.

This well-organized two-story townhouse offers parking facilities, including electric vehicle charging stations just steps from the front door. Upon entering, you arrive at a small vestibule that leads directly into the central living area, a combined kitchen and dining space. The ground floor also houses a restroom and a cozy living room, which opens onto a west-facing garden. This outdoor space benefits from abundant afternoon sunlight while providing close proximity to the neighborhood's expansive green communal area. On the upper floor, there is a bathroom along with four spacious bedrooms that feature notably high ceilings. Please note that the images provided are not of the actual property; therefore, views, room layout, and other details may differ. These photos serve only as examples, and the final dimensions and configuration can be referenced in the floor plan.

  • Rent paid in advance: 15,100
  • Deposit: Contact owner
  • Payment on account: Contact owner
  • Vacant: 15. August 2026
  • Placed:
  • Pets allowed
  • Case number: 1886901