The property is reserved

Receive a mail when this or similar properties become available. Create a free profile here

Dejlig & lys 2 værelses med altan

Rent 9,550 DKK
Rental Period Unlimited
Type Apartment
Location Åbyhøj
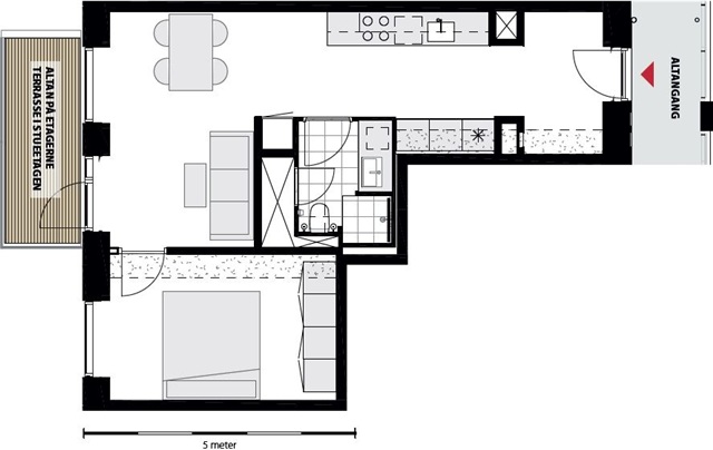
Area 64
Rooms 2 rooms

Søren Frichs Vej, , floor: 4, 1..

The residences at ERDAHUS are characterized by a bright, Scandinavian-inspired design language. Natural oak parquet flooring enhances the rooms with a warm and organic feel, while large window sections provide abundant natural light throughout. The ventilation system, equipped with heat recovery, ensures a healthy and comfortable indoor environment.

Kitchen and bathroom components feature a sleek and modern design by Invita, complemented by Siemens appliances. The bathroom includes underfloor heating and low-maintenance tiles, and is furnished with a toilet, washbasin, shower stall, as well as a stacked washer and dryer unit.

Spacious balconies measuring between 5 and 6 square meters blend harmoniously with the overall architecture. These outdoor spaces are finished with slip-resistant hardwood flooring.

This apartment is situated on the fourth floor.

Located just an eight-minute bike ride from Aarhus city center, it offers easy access to urban amenities.

Small pets are permitted in the unit.

There is an option to rent a parking space in the underground garage.

Please note that the photos and 3D scans originate from a comparable show apartment.

Energy declaration:
  • Balcony/terrasse
  • Parking
  • Lift
  • Rent paid in advance: 9,550
  • Deposit: 28,650
  • Payment on account: Contact owner
  • Vacant: 1. June 2026
  • Placed:
  • Pets allowed
  • Case number: 1886784