3 room apartment with parkering

Rent 12,900 DKK
Rental Period Unlimited
Type Apartment
Location Ølstykke
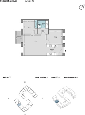
Area 93
Rooms 3 rooms

Bæksager, , floor: 1. 3..

This newly constructed development is situated in the emerging district of Egedal By, close to Egedal Station. The apartments here have been designed with a contemporary architectural approach, featuring large windows that allow generous natural light to fill the interiors. The residences are laid out with well-thought-out floor plans tailored to accommodate a diverse range of residents. Additionally, each home includes a pleasant balcony space.

The neighborhood itself is rapidly evolving, spanning from Stenløse Station to Egedal Station. A key objective in this area's development is to establish a mixed-use environment that integrates residential units with commercial spaces, retail, public and private services, as well as cultural and recreational amenities. The district is interconnected by a network of paths and complemented by natural elements such as rolling hills, small woodland clusters, water features, community gardens, sports fields, and trails that link both internally and to the surrounding open countryside. The planning also emphasizes providing opportunities for various outdoor activities.

From the location, everyday conveniences are easily reachable, with schools, childcare facilities, shopping options, and Egedal Station all located within approximately 1.5 kilometers. As the district continues to expand, even more amenities will become accessible.

Inside the apartments, the design is inviting with a bright and modern interior. The sizable living room, which flows openly into the kitchen area, offers ample space for both a lounge setup and a dining area. Prominent window sections and a balcony door ensure abundant sunlight penetrates the living areas. The kitchen presents a sleek appearance with white, handleless cabinetry and sufficient counter space for cooking. Bedrooms are spacious and come equipped with built-in wardrobes, providing versatile usage options. The bathroom combines a modern and timeless aesthetic, featuring gray tiles, a wall-mounted toilet, white fixtures, and a tiled shower enclosure. A designated space for a laundry column is conveniently located in the entrance hallway.

Heating is supplied through district heating, and residents have access to a storage room located in the basement. For parking, there are 62 spaces available at ground level, including two electric vehicle charging stations. Television and internet services are provided by YouSee with fiber-optic connectivity.

Please note that the pictures, floor plan, and description are for guidance only and may differ from the actual conditions of the apartment. Prospective tenants must not be registered in RKI, as this will affect eligibility; such information is verified when preparing the rental contract.

  • Share-friendly
  • Balcony/terrasse
  • Parking
  • Floor plan
  • Rent paid in advance: Contact owner
  • Deposit: Contact owner
  • Payment on account: Contact owner
  • Vacant: Immediately
  • Placed:
  • Pets allowed
  • Case number: 1886733