1 room apartment on 18 m2

Rent 5,400 DKK
Rental Period Unlimited
Type Apartment
Location Viby J
Area 18
Rooms 1 rooms

Damagervej.

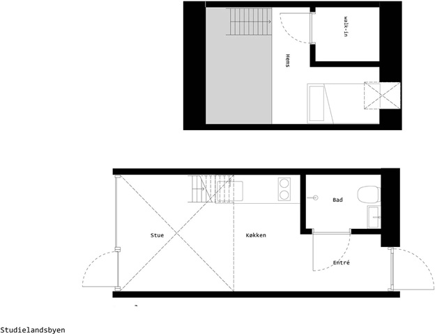
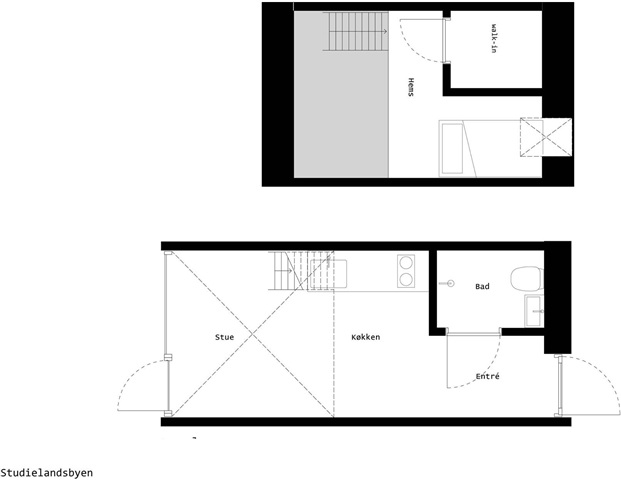
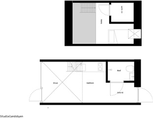
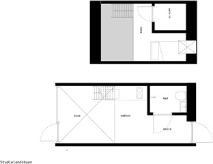
This inviting apartment with a loft space is situated within Studielandsbyen. The unit features a combined kitchen and dining area, an entryway, a bathroom, and a charming loft that provides enough headroom to stand upright, serving as a sleeping area. The total area of the apartment is 26 square meters, with 18 square meters allocated to living space and approximately 8 square meters for the loft. Rent includes water and heating costs, while electricity expenses must be covered by the tenant. It is also possible to apply for housing benefits.

Studielandsbyen offers a community environment where 62 young residents each have their own apartment and share a communal building equipped for social activities such as movie screenings, enjoying a Friday beer, doing schoolwork, and playing table tennis. The neighborhood emphasizes social interaction, with monthly communal dinners that provide opportunities to connect. The location is close to natural surroundings, including forest and a lake, and is conveniently near Viby torv, the former merchant school, fitness facilities, and shopping options.

For more detailed information or to arrange a viewing, please contact us, and we will respond promptly.

  • Balcony/terrasse
  • Parking
  • Rent paid in advance: 0
  • Deposit: 16,200
  • Payment on account: Contact owner
  • Vacant: 1. June 2026
  • Placed:
  • Pets not allowed
  • Case number: 1886220
Notice: The location of the property on the map above may be approximate. Contact the owner for further information on the location of the property