Housing is no longer available

Lys 3 værelses midt i Lyngby!

Rent 15,500 DKK
Rental Period Unlimited
Type Apartment
Location Kongens Lyngby
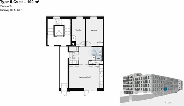
Area 100
Rooms 3 rooms

Kanalvej, , floor: 1, 1..

Please note that the photos shown are not from the specific apartment for rent but are intended to illustrate the style. However, the floor plan corresponds to the actual unit.

This delightful three-room apartment features two bedrooms, a bathroom, and a spacious kitchen-dining area that naturally serves as the central gathering space within the home. The apartment enjoys ample natural light, thanks to well-positioned windows that create a bright and pleasant atmosphere throughout.

The kitchen is generously sized and designed to act as the core of the living area. It is equipped with light-colored Invita cabinetry in a timeless design, complemented by a complete set of modern appliances. A consistent design language is carried through to the bathroom, which also features elements from Invita, ensuring a cohesive aesthetic across the entire apartment.

Situated in the heart of Kgs. Lyngby, the Kanalvejshusene neighborhood offers convenient walking access to Lyngby Main Street, Lyngby Storcenter, and Magasin, providing a variety of shopping and retail options. Directly opposite the building lies expansive green spaces, inviting outdoor activities and play.

The property consists of 145 residences ranging between 64 and 173 square meters, offering layouts from two to five rooms, catering to diverse tastes and housing requirements. This newly constructed development fulfills the desire for a sleek and contemporary living environment, with many apartments featuring large balconies that provide ample opportunity to enjoy fresh air. Residents also have access to a spacious communal atrium courtyard located on the first floor.

Additionally, the location offers excellent public transportation options, with Lyngby Local Railway within a short walking distance, connecting Kgs. Lyngby to Nærum and Jægersborg. From Lyngby station, commuters can reach Nørreport station within 15 minutes via the S-train. In the near future, a light rail connection will also link Kgs. Lyngby directly.

A storage room is included with the apartment, and it is possible to rent a parking space in the basement, subject to availability.

Energy declaration:
  • Parking
  • Lift
  • Rent paid in advance: 0
  • Deposit: 46,500
  • Payment on account: 1,084
  • Vacant: 15. May 2026
  • Placed:
  • Pets allowed
  • Case number: 1885765