Skøn 2-værelses lejlighed i Lyngby

Rent 15,700 DKK
Rental Period Unlimited
Type Apartment
Location Kongens Lyngby
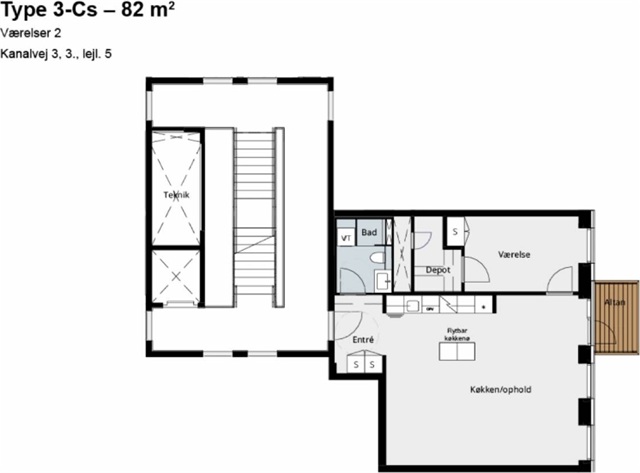
Area 82
Rooms 2 rooms

Kanalvej, , floor: 3, 5..

Please note that the photographs shown are not from the actual rental unit but are intended to provide a general sense of the style. The floor plan represents the specific apartment.

This charming two-room apartment comprises one bedroom, one bathroom, and a spacious, inviting kitchen-living area that serves as the central gathering place in the home. Natural light streams through well-positioned windows, enhancing the bright and comfortable atmosphere throughout.

The kitchen is generously sized and designed as the heart of the apartment. It features light-toned Invita cabinetry crafted in a sleek, timeless style, complemented by a full set of integrated appliances. Consistent with the kitchen's design, the bathroom is also fitted with Invita elements, creating a cohesive aesthetic throughout the residence.

Situated in the canal-side complex known as Kanalvejshusene, the apartment is centrally located in the vibrant heart of Kongens Lyngby. Residents enjoy walking distance access to Lyngby Main Street, Lyngby Storcenter, and Magasin, offering a range of shops and retail conveniences. Directly across from the building lie expansive green spaces ideal for outdoor activities and play.

The property consists of 145 units ranging from 64 to 173 square meters, offering two to five rooms to accommodate various lifestyle preferences and needs. This newly constructed development fulfills the vision of modern, clean-lined living, with many apartments boasting large balconies that provide ample opportunity to enjoy fresh air. Additionally, all residents have access to the sizable communal atrium courtyard located on the first floor.

The location is strategically placed for excellent public transportation options, with Lyngby's local train station just a short walk away. This station connects Kongens Lyngby to Nærum and Jægersborg, while S-train service from Lyngby station offers a quick 15-minute journey to Nørreport Station. In the near future, light rail service will also directly link Kongens Lyngby to surrounding areas.

Each apartment includes a storage room either within the unit or in the basement. Parking spaces in the basement are available for rent, subject to availability.

Energy declaration:
  • Balcony/terrasse
  • Parking
  • Lift
  • Rent paid in advance: 0
  • Deposit: 47,100
  • Payment on account: 947
  • Vacant: 1. May 2026
  • Placed:
  • Pets allowed
  • Case number: 1885764