Housing is no longer available

103 m2 house in Lejre

Rent 14,800 DKK
Rental Period Unlimited
Type House
Location Lejre
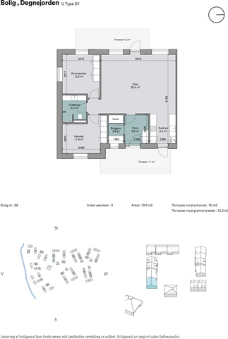
Area 103
Rooms 3 rooms

Degnejorden.

This development in Lejre features contemporary, bright, and tastefully designed terraced houses set within a modern village environment that emphasizes community connections. New construction is actively underway in the area, creating a neighborhood that integrates nature and residential clusters. The spaces between housing groups are designed as natural green zones, planted with a diverse selection of trees and shrubs, set against a base of meadow grasses and herbs. Within this natural area, footpaths and smaller zones for relaxation and activities will be established.

The project includes a total of 82 rental units spread across three different housing types, available in one or two-story formats. Additionally, 13 houses will be sold privately. The neighborhood will also feature one assembly hall and five communal houses. For parking, there will be 143 spaces available for general use, including handicap-accessible spots. Furthermore, two electric charging stations are planned, allowing four electric vehicles to charge simultaneously.

Occupancy will occur in three phases, with specific move-in dates for each home detailed in the respective listing. Tenants are not required to pay any advance charges through the landlord, as water service is provided by FORS, and heating is supplied via heat pumps. Each tenant must arrange their own electricity provider. All major appliances are included with the units.

Reservations for these homes can be made by attending open house events, which are held approximately weekly until all units are rented. Interested parties can request an invitation to the next open house through the listing. The initial payment must be completed shortly after receiving the lease agreement.

Viewing is limited exclusively to the show home, and access to the construction site without an open house invitation is strictly prohibited. Photos, floor plans, and descriptions provided are for guidance only. Please note that applicants registered in the RKI credit database will not be eligible to lease these properties; this will be verified during the lease agreement process.

  • Share-friendly
  • Balcony/terrasse
  • Parking
  • Rent paid in advance: Contact owner
  • Deposit: Contact owner
  • Payment on account: Contact owner
  • Vacant: 1. June 2026
  • Placed:
  • Pets allowed
  • Case number: 1885380