4 room apartment of 100 m2

Rent 9,995 DKK
Rental Period Unlimited
Type Apartment
Location Brabrand
Area 100
Rooms 4 rooms

Anna Anchers Gade, , floor: 3. tv..

This contemporary apartment is located in the Pionérhusene complex, situated in Brabrand, right on the border to Åbyhøj-an area experiencing significant growth. Offering excellent value for money, the building stands approximately 5 kilometers from Aarhus city center and includes a total of 222 up-to-date rental units, with vacancies available regularly.

The surrounding neighborhood features amenities such as Byparken, which offers expansive green spaces, fruit trees, playgrounds, and inviting spots to relax. Adjacent is the newly developed Karen Blixen Quarter, a desirable residential area emphasizing community, diversity, neighborliness, and a safe environment for children. Residents can engage in various local events, initiatives, and a vibrant association life.

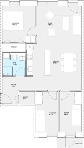
The apartment itself presents a well-designed, practical layout. Upon entering, there is access to a modern bathroom equipped with both a washing machine and dryer. The bright, open-plan HTH kitchen is fully fitted with all major appliances and seamlessly connects to the living room. It includes three spacious bedrooms, making it suitable for shared living arrangements. A pleasant balcony extends from the living space, while a large storage room is conveniently located within the unit. Free parking is available nearby the building.

Please note that images shown are from another apartment in the same complex; however, the materials and quality standards are identical. Permission may be granted for keeping one small dog, with a maximum weight of 10 kilograms. Tenants registered with RKI are not eligible to rent.

  • Rent paid in advance: 0
  • Deposit: Contact owner
  • Payment on account: Contact owner
  • Vacant: 1. May 2026
  • Placed:
  • Might be allowed - ask landlord
  • Case number: 1885003