118 m2 hus/villa i Frederikssund

Rent 14,800 DKK
Rental Period Unlimited
Type House
Location Frederikssund
Area 118
Rooms 4 rooms

Bakkehøjvej, , floor: Snostrup..

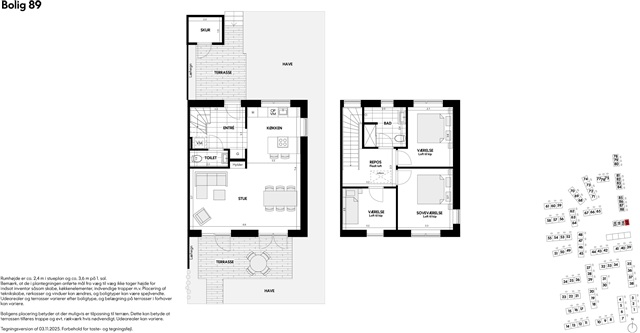
A contemporary and eco-friendly residence is now available for rent in the new Bakkekvarter neighborhood of Vinge. This home is part of a community dedicated to reducing its environmental impact through carefully chosen design and materials. Spread over two floors, the layout comprises an entrance area featuring a combined washer-dryer tucked beneath the staircase, a guest toilet, and an open kitchen fully equipped with modern appliances, adjacent to a dining area. The bright living room opens onto a terrace and garden, offering views over the surrounding green fields from the dining space. The upper floor includes a landing, a bathroom, and three well-sized rooms suitable for use as bedrooms, a children's room, or a home office. Additionally, the property comes with its own shed as well as terraces and gardens on both sides of the house.

Situated in a desirable, nature-adjacent location that is undergoing development, the property benefits from proximity to public transportation and Frederikssund. These terraced houses are constructed from natural, bio-based materials with an emphasis on environmental responsibility and a low carbon footprint. Ongoing data collection in these homes aims to deepen understanding of how to build more climate-conscious housing in the future. This involves conducting measurements inside the houses and engaging with residents, so prospective tenants should be prepared to participate and ideally have an interest in sustainability and environmental issues. Please note that the displayed images are not of the specific home offered, and thus aspects such as views and room layouts may differ. The photos serve only as examples, and the actual size and configuration can vary (refer to the floor plan). The indoor furnishings shown in the pictures are AI-generated.

  • Rent paid in advance: 14,800
  • Deposit: 44,400
  • Payment on account: Contact owner
  • Vacant: 15. June 2026
  • Placed:
  • Pets allowed
  • Case number: 1884689
Notice: The location of the property on the map above may be approximate. Contact the owner for further information on the location of the property