104 m2 hus/villa med altan/terrasse

Rent 13,250 DKK
Rental Period Unlimited
Type House
Location Hasselager
Area 104
Rooms 5 rooms

Fuglekærvej, , floor: 0..

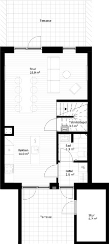
Situated on Fuglekærvej, this bright and thoughtfully designed two-story townhouse offers a perfect blend of practicality and a cozy home environment. Upon entering, you are welcomed by a spacious hallway that comfortably accommodates outerwear and footwear. A cleverly integrated laundry corner with a washing machine and dryer is located here, making everyday chores straightforward and hassle-free.

Proceeding further leads you into the heart of the residence-the timeless kitchen, fully equipped with all necessary appliances including a dishwasher. This kitchen flows openly into the living room, forming a light-filled and airy communal area ideal for cooking, relaxing, and socializing. Expansive windows allow abundant natural light to flood in, seamlessly linking indoor spaces with the outdoor environment. From the living area, a direct exit opens onto a charming terrace bathed in sunlight, an ideal spot for morning coffee or relaxing summer evenings. Additionally, there is potential to create a small welcoming outdoor space in front of the house, perfect for receiving visitors or enjoying extra outdoor living.

An understated yet stylish staircase leads to the first floor, where the main bedroom and three additional rooms are located. These rooms offer flexible options for use as children's bedrooms, a home office, or a guest room, depending on your needs. Each bedroom includes built-in wardrobes, providing ample storage and maintaining a neat appearance. The residence features two bathrooms, one on each floor, enhancing convenience for families and couples alike. Beneath the staircase, there is a compact storage area suitable for items such as a vacuum cleaner or shoes.

A large and spacious shed accompanies the property, offering significant room for items like prams, bicycles, tools, or seasonal equipment. Parking is available nearby in communal areas, and multiple charging stations for electric vehicles are installed within the neighborhood, ensuring future-ready convenience. Utility costs for electricity, water, and heating are settled directly with the service providers, with heating supplied through district heating. Practical external features include an outdoor power outlet, a water tap, and lighting by the entrance.

Please note that illustrations are model photographs, and changes may occur. Located amidst nature yet close to all amenities, this home is situated in the sought-after Området area of Hasselager, combining peaceful surroundings with easy access to daily necessities and the vibrant offerings of Aarhus. Residents enjoy green communal spaces ideal for walks, children's playgrounds for outdoor play, and a strong community spirit facilitated through an app.

Hasselager is positioned approximately 10 kilometers from Aarhus city center and benefits from convenient transport options including bus services, motorways, and frequent connections to the city's cafes, cultural venues, and shopping destinations. This family-friendly neighborhood features nearby schools, childcare facilities, and shopping opportunities, making it perfectly suited to busy family life. Well-connected pedestrian and bicycle paths provide safe routes for children traveling to school or sports activities.

  • Rent paid in advance: 0
  • Deposit: 34,137
  • Payment on account: Contact owner
  • Vacant: 1. June 2026
  • Placed:
  • Pets allowed
  • Case number: 1884608