83 m2 apartment on Torbenfeldvej

Rent 12,700 DKK
Rental Period Unlimited
Type Apartment
Location Vallensbæk Strand
Area 83
Rooms 3 rooms

Torbenfeldvej.

Emiliehaven's apartments offer modern, bright, and practical living spaces where thoughtful design meets comfort seamlessly.

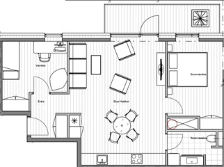
This particular apartment measures 83 square meters and is designed with a spacious layout comprising three rooms. The open-plan kitchen and living room unite to create a luminous and welcoming common area. There is a well-sized bedroom alongside an additional room that can serve various purposes, such as a child's bedroom, guest room, or home office. The bathroom includes both a towel warmer and a combined washer-dryer unit for added convenience.

A notable feature is the pleasant balcony, ideal for enjoying nice weather. Newly constructed, the residence is characterized by large window sections that fill the interior with natural light, enhancing the sense of openness.

Residents can also opt to rent a permanent parking space in the underground garage, providing a reliable and secure parking option. The property is situated in a peaceful and well-maintained neighborhood in Vallensbæk Strand, offering close proximity to green spaces, shopping facilities, and public transportation. Vallensbæk Station lies approximately a 10-minute walk away, providing straightforward access to the S-train line connecting Copenhagen and Køge.

Pet owners are allowed to keep one animal weighing up to 25 kilograms.

Please note that the photos are intended for guidance and may not depict this exact apartment but are from the same building. Discrepancies may occur.

The apartment is leased by a professional landlord, and the building is supported by caretaking services and an administrator.

  • Share-friendly
  • Senior housing
  • Balcony/terrasse
  • Parking
  • Lift
  • Floor plan
  • Rent paid in advance: 12,700
  • Deposit: 38,100
  • Payment on account: 1,000
  • Vacant: 1. April 2026
  • Placed:
  • Pets allowed
  • Case number: 1884080