Nyopførte lejemål i flotte og moderne boligkomplekser

Rent 10,600 DKK
Rental Period Unlimited
Type Apartment
Location Årslev
Area 106
Rooms 4 rooms
  • Digital showcase is available. Landlord offers to show this property to you using video conference tools.

Takvingen.

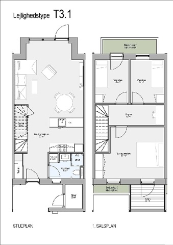
This modern, bright four-room townhouse spans two floors and features a private terrace as well as a balcony, creating a personal retreat in the heart of Årslev.

Constructed with sustainability, community, and architectural diversity in mind, the building's façades are clad in thermally treated wood, emphasizing its environmentally friendly aspects. Situated as part of the Future Suburb in Årslev, south of Odense, the residence enjoys a scenic location near Vindinge Å, complemented by convenient proximity to shopping, educational institutions, and sports facilities.

The ground floor comprises an entrance hall, a bathroom, and a spacious, light-filled kitchen-dining area enhanced by a bay window that floods the space with natural light. From here, there is direct access to a tiled terrace, and a staircase leads to the upper floor. On the first floor, you will find a landing, two bedrooms, each with one closet, and a third bedroom equipped with three closets, plus a private balcony accessible from this level.

This unit offers outdoor access on opposite sides-one side opens to the terrace while the other leads to the balcony-allowing ample opportunity to enjoy sunlight throughout the day. The kitchen is outfitted with a dishwasher and a fridge/freezer unit. Tenants are responsible for providing their own washing machine and tumble dryer, though the apartment is pre-equipped for their installation.

Two model homes are planned to be available for viewing in July 2026, offering prospective tenants a chance to explore the layout and material choices. However, individual units cannot be toured beforehand.

The images provided are visualizations intended to demonstrate the standard of the apartments and do not represent a specific unit. Should you wish to secure a particular apartment, a rental agreement can be prepared on request, but reservations cannot be made.

Practical details: Electricity, water, and heating bills are billed directly by the respective utility companies.

Additional amenities include free parking available on a first-come, first-served basis. Each residence comes with its own storage shed. There is also access to a communal house, event room, and guesthouse for a fee, as well as an electric vehicle charging station, also available at an extra cost.

Examples of addresses offering the same type of apartment (T3.1) are as follows:

Takvingen: 106 square meters, rent DKK 10,600, available from March 1, 2027
Admiralen 24: 106 square meters, rent DKK 10,600, available from April 1, 2027
Admiralen 28: 106 square meters, rent DKK 10,600, available from April 1, 2027

  • Rent paid in advance: 10,600
  • Deposit: 31,800
  • Payment on account: Contact owner
  • Vacant: 1. August 2027
  • Placed:
  • Pets not allowed
  • Case number: 1882894