The date for open house is only visible with subscription - click here

Flot 4-værelses lejlighed med altan!

Rent 20,900 DKK
Rental Period Unlimited
Type Apartment
Location Valby
Area 110
Rooms 4 rooms

No English text was provided by the landlord, but we have made this automated translation for you:

Montagehalsvej, , floor: 3. 1..

Welcome to Montagehalsvej in Valby Maskinfabrik.

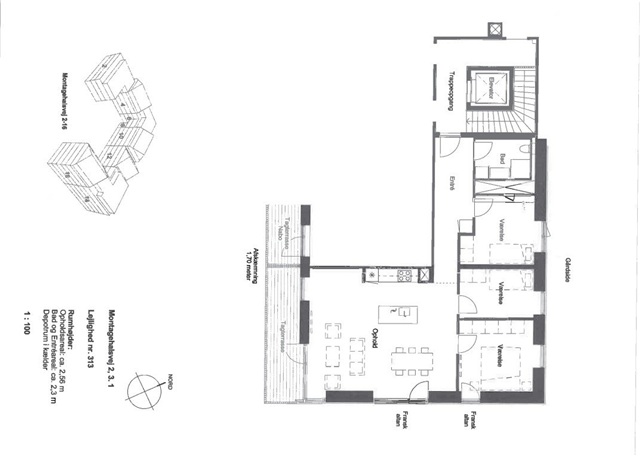
Step into this charming apartment, which welcomes you with a spacious entrance hall. From here you have access to the apartment's modern bathroom and 3 comfortable bedrooms.

The centerpiece of the home is the impressively bright kitchen-dining room. Here you can unleash your culinary passion in a newer kitchen that radiates quality and functionality. From the kitchen-dining room, a door leads you out to the apartment's roof terrace, where you can enjoy the sunshine and fresh air.

You will live in an attractive rental property, where you get;
- Residence period as long as you want
- Possibility of permission for pets (by agreement)
- Professional landlord
- Shared green areas and common areas
- White goods included in the kitchen
- Please note that there is a binding period of 12 months

Your new address is located in the sought-after Valby Maskinfabrik, in Gearhuset. The area is known for its vibrant local environment with a rich selection of supermarkets, cozy cafes and convenient public transport connections. With Valby Station and the new metro station Copenhagen South, the heart of the city is only a short journey away. In addition, you will find a wealth of sports facilities, schools and daycare centers nearby.

As an added bonus, you get access to a storage room - either directly in the apartment or in the basement. In the basement there is also the possibility of renting a parking space.

Interested in experiencing this beautiful apartment? We look forward to welcoming you to a viewing.

If you want to read the description in its original language that is also possible. Read original description

  • Share-friendly
  • Balcony/terrasse
  • Parking
  • Lift
  • Floor plan
  • Rent paid in advance: 20,900
  • Deposit: 62,700
  • Payment on account: 1,200
  • Vacant: 15. March 2026
  • Placed:
  • Pets allowed
  • Case number: 1882724