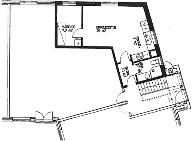
2 room apartment on 53 m2

Rent 5,595 DKK
Rental Period Unlimited
Type Apartment
Location Viborg
Area 53
Rooms 2 rooms

Odinparken, , floor: 1. th..

This well-designed two-room apartment spans 53 square meters and is situated on the first floor. The residence features a bright kitchen that seamlessly connects with the living room, creating an open and spacious atmosphere. The kitchen is equipped with practical storage solutions and includes built-in appliances.

The living area receives ample natural light through large windows and offers enough space to accommodate both a sofa and dining area comfortably. The bedroom is regularly shaped, making furniture arrangement straightforward, and it also benefits from good lighting.

The bathroom is bright and efficiently laid out, featuring a shower enclosure as well as a washing machine. This apartment is well maintained and ready for immediate occupancy.

Virtual tours are available for all our rentals-please reach out for more details. All rentals are allocated on a first-come, first-served basis.

  • Share-friendly
  • Parking
  • Rent paid in advance: Contact owner
  • Deposit: 16,785
  • Payment on account: 900
  • Vacant: Immediately
  • Placed:
  • Pets not allowed
  • Case number: 1882314