Dejligt 4-værelses rækkehus Odense SV

Rent 11,825 DKK
Rental Period Unlimited
Type Apartment
Location Odense SV
Area 129
Rooms 4 rooms
  • Digital showcase is available. Landlord offers to show this property to you using video conference tools.

Sanderumvej.

Located on Sanderumvej in the southwestern part of Odense, this rental property is situated within a calm and family-oriented neighborhood characterized by lush surroundings and convenient amenities. The residence offers proximity to shopping options and natural areas alike, with easy access to public transportation and a short distance to Sanderumskolen. The environment features well-maintained buildings and a pleasant ambiance, making day-to-day living comfortable and secure.

The unit is part of a row of houses, each with its own parking space, direct access to a private terrace, and use of a shared park-like garden area. The interior of the home is bright and welcoming, creating a warm atmosphere complemented by a well-thought-out layout.

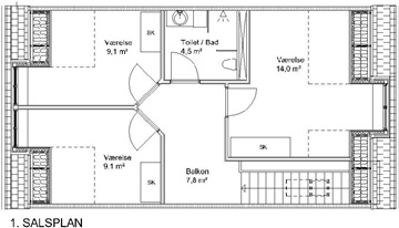
Inside, the apartment includes on the ground floor an entrance hall with stairs leading to the first floor, a utility room equipped with a freezer and washing/drying machines, a kitchen/dining area furnished with all major appliances, and a guest toilet. On the upper level, there is a balcony, a bathroom with a shower, a master bedroom, and two additional rooms featuring built-in wardrobes. Furthermore, underfloor heating is installed throughout the residence, adding an extra level of comfort.

Additional details to note include that electricity, antenna, water, and heating expenses are payable directly to the respective utility providers. The property is not suitable for use as a shared housing arrangement. Facilities included with the rental consist of a charging station for electric and hybrid vehicles as well as a storage room.

  • Balcony/terrasse
  • Garden
  • Rent paid in advance: 11,825
  • Deposit: 35,475
  • Payment on account: Contact owner
  • Vacant: 1. June 2026
  • Placed:
  • Pets not allowed
  • Case number: 1882129