4 room apartment of 92 m2

Rent 9,695 DKK
Rental Period Unlimited
Type Apartment
Location Brabrand
Area 92
Rooms 4 rooms

Anna Anchers Gade, , floor: 1. tv..

This contemporary apartment is situated in Pionérhusene, located in Brabrand on the border of Åbyhøj-an area undergoing rapid development that offers excellent value for your money. The building stands approximately 5 kilometers from Aarhus city center and comprises a total of 222 modern rental units, with apartments becoming available on an ongoing basis. Nearby, residents can enjoy Byparken, a spacious green area featuring fruit trees, playgrounds, and inviting spaces to relax. Adjacent to this is the recently established Karen Blixen Quarter, a sought-after neighborhood emphasizing community spirit, diversity, neighborliness, and a safe environment for children. The local area supports a variety of activities, initiatives, and a vibrant association life.

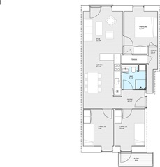
Inside, the apartment presents a well-considered and practical layout, including an entrance hall leading to a modern bathroom equipped with both a washing machine and a dryer. The sleek, open-plan HTH kitchen is fitted with all major appliances and flows seamlessly into the living room. Four generously sized rooms provide an ideal setup for shared living arrangements. The living space extends onto a pleasant balcony or terrace, while a large storage room is conveniently located within the apartment itself. Parking is freely available near the property. Please note that the photos shown were taken in a different apartment within the same building, but the materials and overall standard are identical. It is permitted to keep one small dog weighing up to 10 kilograms. Tenants registered in the RKI credit database are not eligible to rent here.

  • Rent paid in advance: 9,695
  • Deposit: 29,085
  • Payment on account: Contact owner
  • Vacant: 1. March 2026
  • Placed:
  • Might be allowed - ask landlord
  • Case number: 1881614