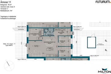
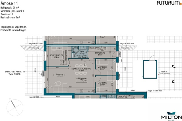
95 m2 house on Åmose

Rent 9,999 DKK
Rental Period Unlimited
Type House
Location Ryslinge
Area 95
Rooms 4 rooms

Åmose, , floor: 0..

This modern townhouse makes optimal use of every square meter. Upon entering, there is a private entrance hall that leads directly to one bedroom. Continuing from the entrance, you step into the home's combined kitchen and living area, featuring a contemporary kitchen open to the living room, which offers ample space to create a cozy seating area. Adjacent to this living area is a separate utility room equipped with a sink as well as a washing machine and dryer. Beyond the utility room is a spacious, modern bathroom. The residence also includes a large bedroom fitted with a built-in wardrobe wall. Access to the terrace and pleasant garden at the rear is available directly from the living room.

The property benefits from a private garden and terrace, along with a 7 m² storage shed for tools. Parking is provided with two designated spaces close to the home. All utility costs are billed directly to the supply companies. The houses are designed to be bright and open. Each home showcases smooth, white ceilings and walls, creating an airy atmosphere. Large, operable windows allow plenty of natural light from multiple directions throughout the living areas, which include the kitchen, dining, and living spaces. Oak plank laminate floors cover these main rooms as well as the bedrooms, while the entrance hall, utility room, bathroom, and shower feature elegant light gray tiled floors. Doors have a smooth white finish paired with stainless steel handles and are installed without thresholds to ensure easy access. The window sills are built from masonry and finished with white lime plaster, complemented by white, smooth baseboards where the walls meet the floors.

Attention to detail is evident throughout the home. The utility room includes a countertop and sink, and the bathroom is conveniently connected to this space. The kitchen, bathroom, utility room, and bedroom all feature modern cabinetry with a sleek white matte finish paired with charcoal-gray linear handles. Laminate countertops in a rustic slate color provide durability, each incorporating spacious stainless steel sinks. Behind the stove is a splashback designed for easy cleaning. The bathroom has a molded sink, a wall-mounted toilet by Ifö Sign, quality fittings from German manufacturer Hans Grohe, and a linear drain in the shower area.

Included with the property are high-quality built-in appliances: an integrated refrigerator/freezer, a built-in dishwasher, an induction cooktop, a range hood, and a pyrolytic self-cleaning oven installed at convenient height. The utility room is equipped with both a washing machine and tumble dryer.

Lighting is thoughtfully planned, featuring installed fixtures in the bathroom and utility room, as well as near the roof ventilation. The kitchen cabinets above the counter are fitted with built-in spotlights. Additionally, the property is pre-wired with conduit ready for the installation of an electric vehicle charging station.

The entire house is heated with underfloor heating, controlled via individual thermostats in each room. A ventilation system ensures a healthy indoor climate. Utility consumption for heating, electricity, water, and sewage is measured individually and billed directly to the tenant by the respective suppliers. Heating is supplied through district heating.

Outside, there is an electrical outlet, an outdoor faucet, and a wall-mounted lamp by the entrance door, complementing the practical and efficient design of this residence.

  • Rent paid in advance: 9,999
  • Deposit: 29,997
  • Payment on account: Contact owner
  • Vacant: 1. May 2026
  • Placed:
  • Pets allowed
  • Case number: 1880580