1 room apartment on 18 m2

Rent 5,400 DKK
Rental Period Unlimited
Type Apartment
Location Viby J
Area 18
Rooms 1 rooms

Damagervej.

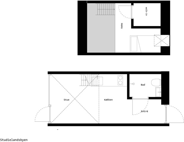
This charming apartment with a loft in Studielandsbyen offers a kitchen and dining area, an entrance hall, a bathroom, as well as a loft space that serves as a sleeping area. The loft is notably tall, allowing for standing height. The total floor space amounts to 27 m², with 18 m² dedicated to the main living area and approximately 8 m² to the loft. The rent includes water and heating costs, while electricity expenses must be covered separately. Applicants have the option to apply for housing support.

Studielandsbyen is a community where 62 young residents each have their own private apartment and share a communal building designed for social activities such as movie nights, enjoying a Friday beer, studying, or playing table tennis. This setup may be ideal if you are looking for a social environment. The community also hosts a monthly shared dinner to encourage interaction among residents. Situated near forests, natural areas, and a lake, the location offers easy access to Viby Torv, the historic merchant school, fitness facilities, and shopping venues.

If you would like more information or wish to arrange a viewing of the apartment, please send a message, and we will respond promptly.

Energy declaration:
  • Balcony/terrasse
  • Parking
  • Rent paid in advance: 0
  • Deposit: 16,200
  • Payment on account: Contact owner
  • Vacant: 1. March 2026
  • Placed:
  • Pets not allowed
  • Case number: 1879134
Notice: The location of the property on the map above may be approximate. Contact the owner for further information on the location of the property

Users who have seen this property also saw these: