5 rooms for 24,000 kr. per month

Rent 24,000 DKK
Rental Period Unlimited
Type Apartment
Location København S
Area 133
Rooms 5 rooms

Nordre Kongelundsvej.

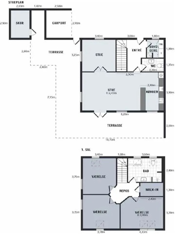
This well-designed residence is now available for rent on a fixed term of one to two years, with possession commencing on February 1st. Constructed over two floors, the home features a carefully planned layout that comfortably accommodates both family activities and everyday living. On the ground floor, there are two bright living areas offering flexible options for furnishing, alongside a practical kitchen that provides ample workspace. Additionally, the lower level includes an entrance hall, a utility room, and a toilet. From this level, direct access leads out to a pleasant terrace, ideal for outdoor living and relaxed moments.

The upper floor is dedicated to the sleeping quarters, comprising three bedrooms, a bathroom, as well as a landing area and a walk-in space. This design suits a variety of household types, including families with children, couples, or those requiring a home office environment. The property also features a carport, a shed, and extra storage space, complemented by multiple terrace areas that enhance opportunities for outdoor enjoyment. Situated in a quiet and desirable neighborhood on Amager, the home benefits from close proximity to green spaces, shops, public transportation, and the vibrant city life of Copenhagen.

  • Rent paid in advance: 24,000
  • Deposit: 72,000
  • Payment on account: 1,050
  • Vacant: 1. February 2026
  • Placed:
  • Might be allowed - ask landlord
  • Case number: 1878556

Users who have seen this property also saw these: