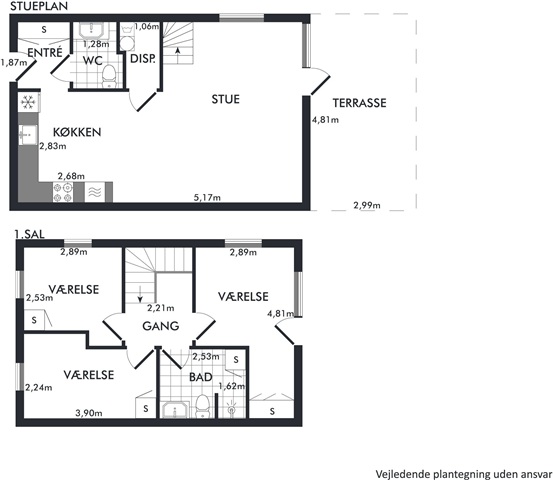
4 room house on 95 m2

Rent 9,750 DKK
Rental Period Unlimited
Type House
Location Herning
Area 95
Rooms 4 rooms

Klokkekildevej.

Situated on Klokkekildevej in Gjellerup, this home offers a unique blend of proximity to urban conveniences and access to serene natural surroundings. Residents benefit from nearby green paths, freely grazing sheep, and tranquil lakes, creating a peaceful atmosphere just outside the city limits.

Living on Klokkekildevej means enjoying a quiet neighborhood where children can safely play outdoors on the street, while the highway remains easily accessible-making a trip to Herning achievable in about fifteen minutes. The residence itself was constructed in June 2020, showcasing influences from New Nordic design principles and featuring high-quality materials throughout. The interior is finished in bright tones, enhancing the natural light and airy feel of the space.

The kitchen is equipped with HTH fixtures, including a complete set of appliances such as a fridge/freezer and washing machine. Additionally, the property comes with a storage shed for extra convenience. For those interested in viewing this charming townhouse, please get in touch to arrange a visit.

Energy declaration:
  • Share-friendly
  • Balcony/terrasse
  • Parking
  • Rent paid in advance: 0
  • Deposit: 29,250
  • Payment on account: Contact owner
  • Vacant: 1. March 2026
  • Placed:
  • Pets allowed
  • Case number: 1878285
Notice: The location of the property on the map above may be approximate. Contact the owner for further information on the location of the property

Users who have seen this property also saw these: