116 m2 apartment in Odense C

Rent 11,044 DKK
Rental Period Unlimited
Type Apartment
Location Odense C
Area 116
Rooms 4 rooms

Falen, , floor: 1..

This charming 4-room apartment offers an abundance of natural light throughout. Positioned in an exceptional and truly unique location, it provides walking distance access to all the amenities of the city center, including the pedestrian street's array of shops and cafés. Nearby, you will find Munke Mose with the Odense River, pathways, and green spaces, as well as convenient proximity to shopping facilities and the Odense Light Rail. Such a prime spot is rare to find in Odense.

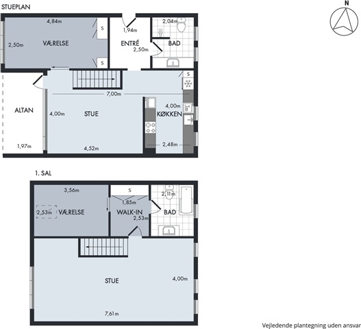
The apartment spans two levels and features four rooms in total. Upon entering, there is a hallway with a wardrobe and access to a bathroom equipped with space for a washing machine. The spacious, well-appointed kitchen offers ample cabinet space and flows openly into the dining room. From the dining area, you can step out onto a lovely sunlit balcony. A staircase from the dining room leads to the upper level, where the living room is located, accompanied by a second bathroom and an additional room.

Throughout the apartment, attractive wooden flooring enhances the living areas. Furthermore, there is a storage room available, either in the basement or on the same floor level as the apartment.

  • Share-friendly
  • Balcony/terrasse
  • Parking
  • Rent paid in advance: 11,044
  • Deposit: 33,132
  • Payment on account: Contact owner
  • Vacant: Immediately
  • Placed:
  • Pets not allowed
  • Case number: 1878027

Users who have seen this property also saw these: