Apartment on Klostervej in Hillerød

Rent 13,595 DKK
Rental Period Unlimited
Type Apartment
Location Hillerød
Area 87
Rooms 3 rooms

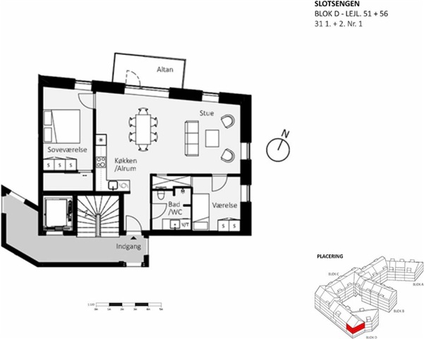
Klostervej, , floor: 1. 1..

The apartments are thoughtfully crafted to foster a bright and welcoming ambience, featuring large window sections that fill the rooms with abundant natural light. Slotsengen stands for both quality and comfort in residential living.

Please note that the photographs shown may depict a different unit; therefore, interior arrangements, location within the building, and views may differ. Refer to the floor plan for the specific layout of this apartment.

Constructed in 2021, the building embraces modern standards of convenience. Great attention has been given to every detail, incorporating contemporary amenities designed to make daily life as comfortable and straightforward as possible. Parking spaces are available for purchase in the underground garage located directly beneath the property, providing secure and easily accessible parking close to your home. Each stairwell is equipped with an elevator and stairs situated close to your apartment, granting direct access to both the basement and the main entrance.

Situated in a remarkable development at a prime location in Hillerød, residents enjoy immediate proximity to all the city has to offer. With Frederiksborg Castle just around the corner, one can appreciate the captivating surroundings that include Slotssøen and the Castle Gardens. The vibrant pedestrian street of Hillerød and the Shops at Slotsarkaderne, filled with retail and dining options, are within a short walking distance, placing everyday essentials conveniently nearby. Additional local attractions such as Streetfood Hillerød, a gently flowing stream, and private green allotment gardens where vegetables like legumes and chili peppers are cultivated during summer months lie just meters from the building, promising a lifestyle closely connected to nature and community if you choose to live at Slotsengen.

To arrange a viewing or obtain more information, please get in touch with us today.

  • Rent paid in advance: 13,595
  • Deposit: 40,785
  • Payment on account: 723
  • Vacant: 1. April 2026
  • Placed:
  • Pets allowed
  • Case number: 1877461

Users who have seen this property also saw these: