Delevenlig 4-værelses lejlighed på Teglholmen

Rent 16,500 DKK
Rental Period Unlimited
Type Apartment
Location København SV
Area 102
Rooms 4 rooms

Teglholm Tværvej, , floor: 3, th..

FORMERIET is situated in Teglholmen, a relatively new district in Copenhagen that offers direct harbor access and lies a short distance from the city center. The neighborhood features a landscape shaped by canals and harbor basins, combined with modern architecture. It accommodates both residential and commercial properties, resulting in a dynamic and diverse local environment.

Teglholmen continues to evolve and provides convenient amenities including supermarkets like Netto and Irma, childcare facilities, a school, cafés, and a harbor bath, all within easy reach.

The building houses 70 apartments varying in size from 72 to 129 square meters, with layouts ranging from two to five rooms. These residences are designed in a Nordic style, characterized by oak flooring, pristine white walls, and kitchens outfitted by SVANE. The appliances, supplied by Siemens, encompass a dishwasher, a fridge/freezer combination, built-in oven, induction cooktops, as well as a washing machine and dryer. Notably, the five-room apartments also feature a wine cooler.

Bathrooms come equipped with underfloor heating, along with washing machines and dryers. Many units include balconies or terraces, with some featuring French balconies facing east. Apartments on the fifth floor boast vaulted ceilings and skylights, enhancing both natural light and the sense of spaciousness.

Additional amenities in the residence include an elevator, a communal room, bicycle parking, and an underground car park. Residents also benefit from access to a green courtyard and close proximity to Den Grønne Kile, a recreational zone being developed with landscaping, walking paths, and comfortable seating areas designed for play and relaxation.

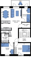
Please note that the measurements presented on the floor plan are indicative.

  • Share-friendly
  • Balcony/terrasse
  • Lift
  • Rent paid in advance: 16,500
  • Deposit: 49,500
  • Payment on account: 1,140
  • Vacant: 1. April 2026
  • Placed:
  • Pets not allowed
  • Case number: 1876573

Users who have seen this property also saw these: