Beautiful townhouse in a natural area by Rungsted Kyst

Rent 25,000 DKK
Rental Period 1 year and more
Type House
Location Rungsted Kyst
Area 155
Rooms 4 rooms

Sømandshvilevej.

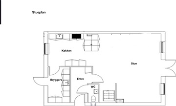
This end-terrace house is situated at the far end of a quiet cul-de-sac and spans two floors. On the ground level, you will find a spacious entrance hall, a guest toilet, and a modern, recently updated kitchen. The kitchen opens directly into a large dining area and living room, creating a connected, open-plan space. From here, there is access to an extensive terrace that leads out to a sizable private green area. Also on the ground floor is a utility room that includes its own entrance and is equipped with a washing machine and dryer.

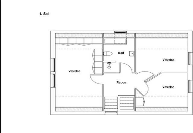
Upstairs, the property offers two well-sized bedrooms alongside a master bedroom featuring built-in wardrobes. This level also contains a generously proportioned bathroom with both a shower enclosure and a bathtub. The home includes a covered carport with an electric vehicle charging station. Within a short walking distance from the house, residents have shared access to a private bathing jetty that includes a dining area, available to everyone living on the street. Additionally, Rungsted Harbor and Rungsted Kyst station can be reached within a few minutes by car.

  • Balcony/terrasse
  • Rent paid in advance: 0
  • Deposit: 75,000
  • Payment on account: 700
  • Vacant: 1. February 2026
  • Placed:
  • Pets not allowed
  • Case number: 1875923
Notice: The location of the property on the map above may be approximate. Contact the owner for further information on the location of the property

Users who have seen this property also saw these: