Under Egen, 96 m2, 3 rooms, 9,695 kr.

Rent 9,695 DKK
Rental Period Unlimited
Type House
Location Holstebro
Area 96
Rooms 3 rooms

Under Egen.

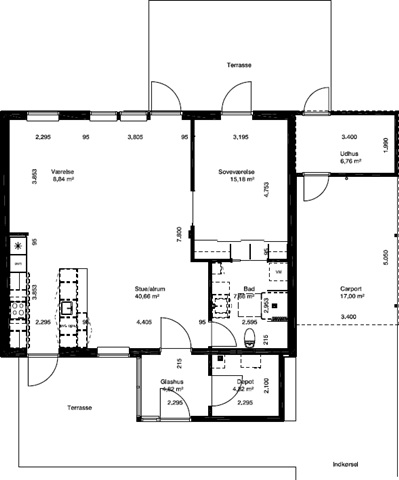
This single-level townhouse is situated in a peaceful area within a newly developed neighborhood. The residence features a spacious entrance hall leading into a generously sized kitchen and dining area, which flows openly into the living room. From here, there is access to a bedroom, an additional room, and a bathroom. The property also offers an inviting terrace with an attached small garden, ideal for enjoying sunlight throughout the day.

Included with the home are a carport and a small storage shed for extra convenience. The tenant is responsible for paying consumption charges directly for water, heating, and electricity.

The location provides easy access to a nearby school, sports facilities, and shopping options.

  • Share-friendly
  • Balcony/terrasse
  • Parking
  • Rent paid in advance: 9,695
  • Deposit: 29,085
  • Payment on account: Contact owner
  • Vacant: Immediately
  • Placed:
  • Pets allowed Efter aftale
  • Case number: 1873467

Users who have seen this property also saw these: