Midgårdsvej, 56 m2, 2 rooms, 8,100 kr.

Rent 8,100 DKK
Rental Period Unlimited
Type Apartment
Location Odense V
Area 56
Rooms 2 rooms

Midgårdsvej, , floor: 2. 7..

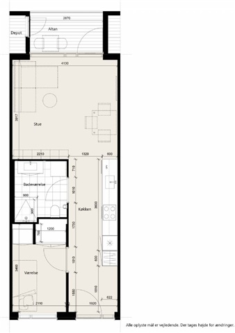
This two-room apartment features a bedroom, a bathroom, and a modern kitchen seamlessly integrated with a bright living area. The bathroom is designed to accommodate a stacked washer and dryer if desired, and the kitchen includes a built-in dishwasher. The living room offers direct access to a private balcony overlooking the beautiful green surroundings of Bodilhaven.

Facing the atrium garden, there is a front area where you can observe the communal life and greenery. This space invites you to create a cozy atmosphere with a few pots and either a narrow bench or a small metal café set. The residence comprises an entrance hall with a wardrobe, a bathroom spacious enough for a laundry column, a bedroom featuring a built-in closet, and a contemporary kitchen equipped with upper cupboards and an integrated dishwasher. In addition, there is a private storage room located within the atrium garden.

Bodilhaven places a strong emphasis on community life, organizing events such as communal dining and weekly board and card game sessions. Residents have the opportunity to socialize with neighbors and share access to amenities including a workshop, a petanque court, and a common room that can be reserved for private gatherings and other activities.

The surrounding area of Bodilhaven offers several lovely green spaces where one can enjoy a peaceful walk in Bolbroparken or explore the nearby forests, Snapind Skov and Åløkke Skov, both perfect for spending time in scenic nature. This location is ideal for those who value proximity to natural areas while maintaining easy access to urban conveniences and public transport options, including the light rail.

  • Balcony/terrasse
  • Lift
  • Rent paid in advance: 8,100
  • Deposit: 24,300
  • Payment on account: 300
  • Vacant: 1. April 2026
  • Placed:
  • Pets allowed
  • Case number: 1870621

Users who have seen this property also saw these: