The property is reserved

Receive a mail when this or similar properties become available. Create a free profile here

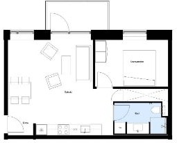
2 vær. med altan og mulighed for parkering - Lokesvej

Rent 8,800 DKK
Rental Period Unlimited
Type Apartment
Location Åbyhøj
Area 60
Rooms 2 rooms

No English text was provided by the landlord, but we have made this automated translation for you:

Lokesvej, , floor: 1, 1..

The apartment has a new and beautiful kitchen from Invita with all appliances.

The kitchen is in open connection with the living area/living room.

Spacious bathroom with tiled floor with underfloor heating, large shower and its own washing machine.

Both the bedroom and living room have nice parquet floors.

The property is built with a beautiful courtyard with a small playground. For storage, there is a large storage room in the basement. It is possible to rent a parking space, which is also located in the basement with a private driveway. Permission can be given for a pet under 10 kg. In the property.

The pictures are from an identical apartment

– Available 01.02 2026 🏠

– Possibility of renting a parking space in the basement 🚗

– You get your own balcony ☀️

- Short distance to Aarhus C 🚲

If you want to read the description in its original language that is also possible. Read original description

  • Balcony/terrasse
  • Lift
  • Rent paid in advance: 8,800
  • Deposit: 26,400
  • Payment on account: 400
  • Vacant: 2. February 2026
  • Placed:
  • Pets allowed
  • Case number: 1870131

Users who have seen this property also saw these: