Housing is no longer available

Central 3 værelses lejlighed

Rent 8,100 DKK
Rental Period Unlimited
Type Apartment
Location Tølløse
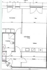
Area 75
Rooms 3 rooms

No English text was provided by the landlord, but we have made this automated translation for you:

Vestergade.

Really nice, well-furnished 3-room apartment centrally located in Tølløse, with a few steps to shopping.

The apartment consists of a hallway, toilet/bathroom, large living room/kitchen, and 2 bedrooms.
There is a common hallway outside the apartment, which is shared with other residents.
There are parking options right in front of the property.

Short distance to the station, with connections by both train and bus, including to Copenhagen, Kalundborg and Slagelse.
Short distance to the motorway towards Copenhagen.

If you wish to see the apartment, please provide your phone number.

Before drawing up a lease, new tenants are always checked in RKI.

Pets are NOT allowed.

If you want to read the description in its original language that is also possible. Read original description

Energy declaration:
  • Parking
  • Rent paid in advance: 24,300
  • Deposit: 24,300
  • Payment on account: 300
  • Vacant: 1. February 2026
  • Placed:
  • Pets not allowed
  • Case number: 1869685

Users who have seen this property also saw these: